|
Деятельность / Управление работа с территориями / ЖКХ и благоустройство / Городская среда / Городская среда.
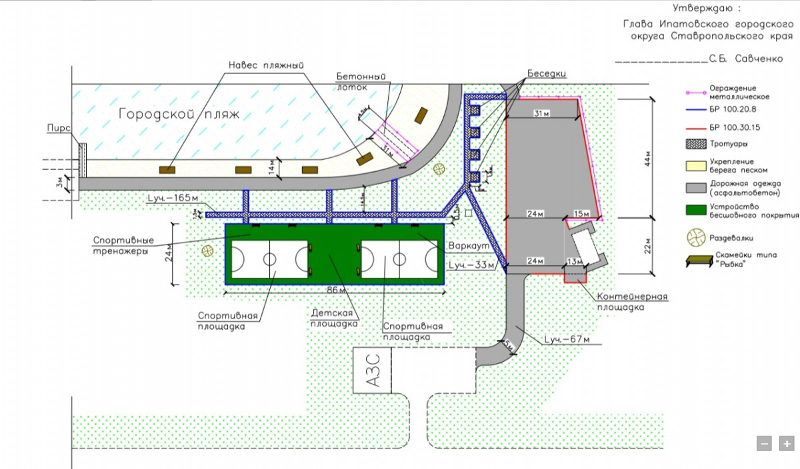
На первом этапе проекта «Городская среда» Ипатовцы предлагали территории для благоустройства. По итогам сбора идей и замечаний определили приоритетные объекты. Больше всего предложений горожан касались городского пляжа и сквера. Чтобы жители могли иметь представление о том, как могут преобразиться места отдыха, дизайнеры-архитекторы представили свои эскизы и планы.
Городской пляж — единственный большой водоём в городе. Вокруг него предлагают построить тротуар, дорожки и площадки, установить беседки со столиками, навесы от солнца и раздевалки, а в самом озере — разместить буйки. Также по проекту здесь может появиться детская площадка и велопарковка.
Сквер - возле стадиона по улице Ленинградской — популярное место для спортивных мероприятий и отдыха. По проекту предполагается озеленение, ремонт тротуара, установка фонарей, фонтана, беседок.
|
|
|

На первом этапе проекта «Городская среда» Ипатовцы предлагали территории для благоустройства. По итогам сбора идей и замечаний определили приоритетные объекты. 































